
Provoquer la limite
Orangeriegarten, Darmstadt, Allemagne
Ulysse Bérard
Licence 3 / Semestre 2
Enseignant(e/s) d’atelier :
Marco Stathopoulos
Assistant(e) d’atelier :
Nicholas Archer
Groupe de travail :
Ulysse Bérard
Iris Grillet
Huicheng Lian
Zimo Zhang
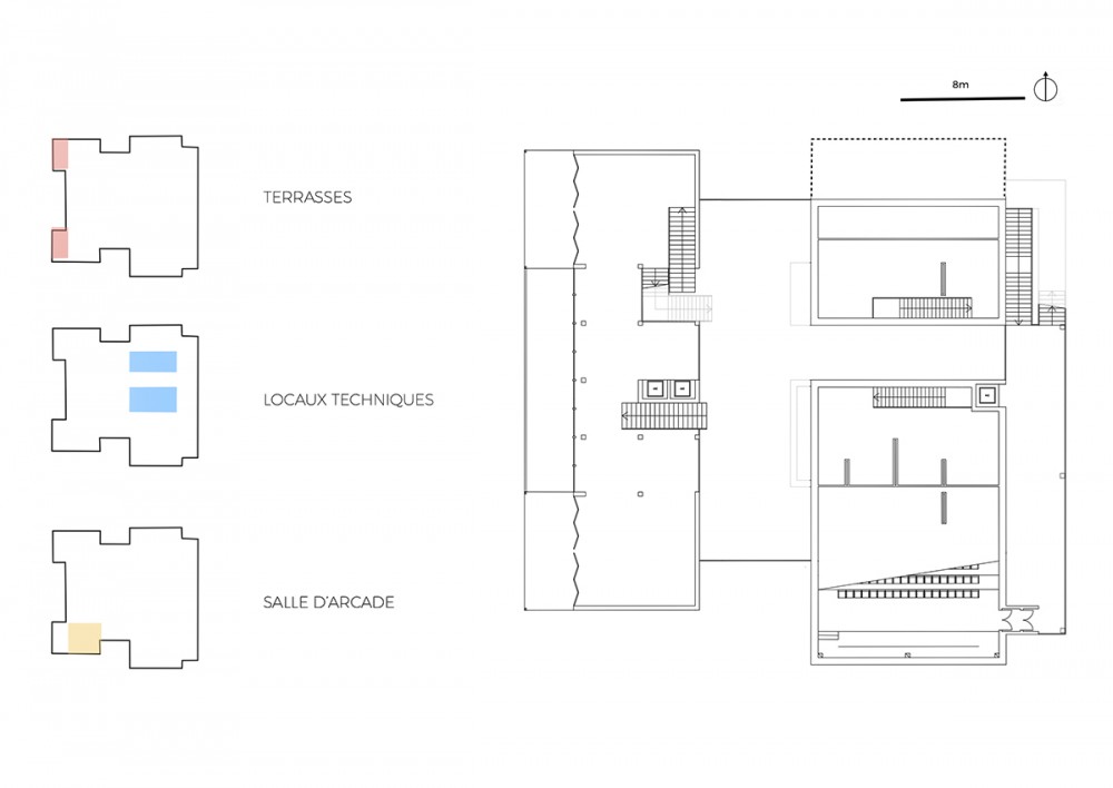
Le projet marque l’entrée du jardin de l’Orangerie situé dans la ville de Darmstadt en Allemagne. Il suscite par son traitement architectural un dialogue entre la nature et la ville.
Positionné au nord du projet urbain, le cinéma se place comme premier repère et signal du nouveau pôle culturel que le quartier accueille.
Ses formes et sa couleur rappellent celles du Pavillon de l’Orangerie, monument incontournable situé à proximité.






