
Entre 2 mondes
Hôpital Saint-Vincent de Paul, Paris (75), France
Imanol Diaz Valcarcel
Licence 2 / Semestre 1
Enseignant(e/s) d’atelier :
Jacques Pochoy
Ce projet adresse la question de l’habitat en milieu urbain. Quel habitat concevoir dans un paysage citadin déjà fortement constitué ? Les objectifs issus de cette réflexion sont de penser une architecture et des logements pérennes tout en travaillant le rapport à l’espace, à la ville et aux autres.
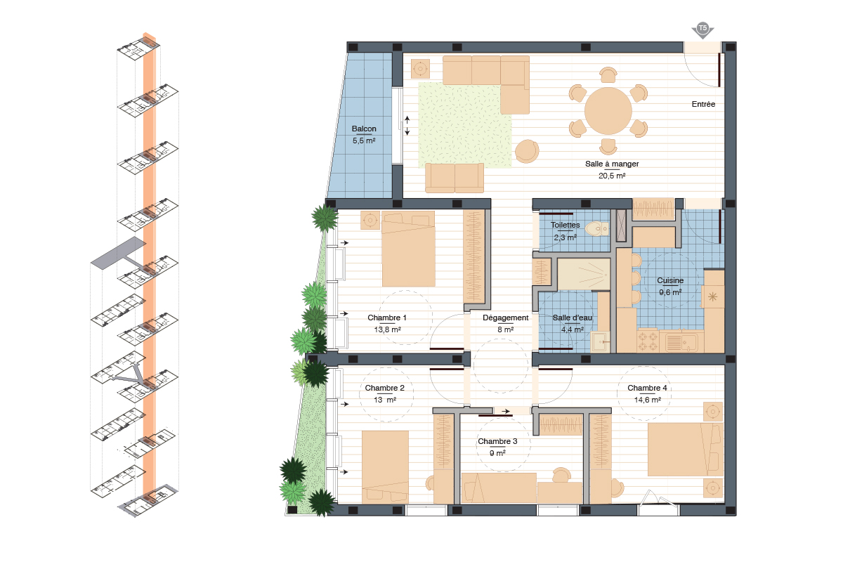
Composé de 33 logements sociaux, cette architecture est développée sur le site de l’ancien Hôpital Saint-Vincent de Paul. En y intégrant l’accès principal vers la future ZAC, actuellement en construction sur le site de l’ancien hôpital, elle vient définir ici une transversalité nouvelle. Le bâtiment se découpe ainsi en 3 parties : 2 ailes habitées se faisant face et une voirie centrale.
Ces 2 constructions épousent les hauteurs des immeubles adjacents ce qui permet au projet de mieux se fondre dans le tissu existant. Un effet d’entonnoir entre les 2 parties invite le visiteur à s’engouffrer depuis la rue vers le cœur de l’îlot, puis vers nouvelle ZAC. Afin d’atténuer l’effet de vis-à-vis entre les 2 édifices, des passerelles dynamiques viennent briser l’orthogonalité du lieu et tissent des liens entre résidents. Elles permettent notamment l’accès aux appartements du bâtiment secondaire depuis les circulations verticales du bâtiment principal.
Les façades sur rue respectent l’alignement et assurent la continuité avec le contexte alentour. Mais au-delà de son enveloppe, cette architecture cherche à proposer des logements agréables dans lesquels il est possible de se projeter dans le temps. Ils bénéficient ainsi tous d’une luminosité naturelle optimisée et de l’accessibilité aux personnes à mobilité réduite, les duplex concentrant sur leurs premier niveau l’ensemble des pièces vitales (pièces d’eau, chambre et séjour).
"Entre 2 mondes" propose un dynamisme nouveau à travers des espaces qui repoussent les limites des zones privées et publiques. Le projet promeut notamment l’interaction entre les résidents, pour ne plus s’enfermer chez soi, mais au contraire participer à la vie communautaire.






