
Sous les toits
Quai de la Marne, Paris (75), France
Anna Gaudin
Licence 1 / Semestre 2
Bicursus Architecte-Ingénieur (AI)
Enseignant(e/s) d’atelier :
Gaspard Saint-Macary
Assistant(e) d’atelier :
Victorien Pangaud
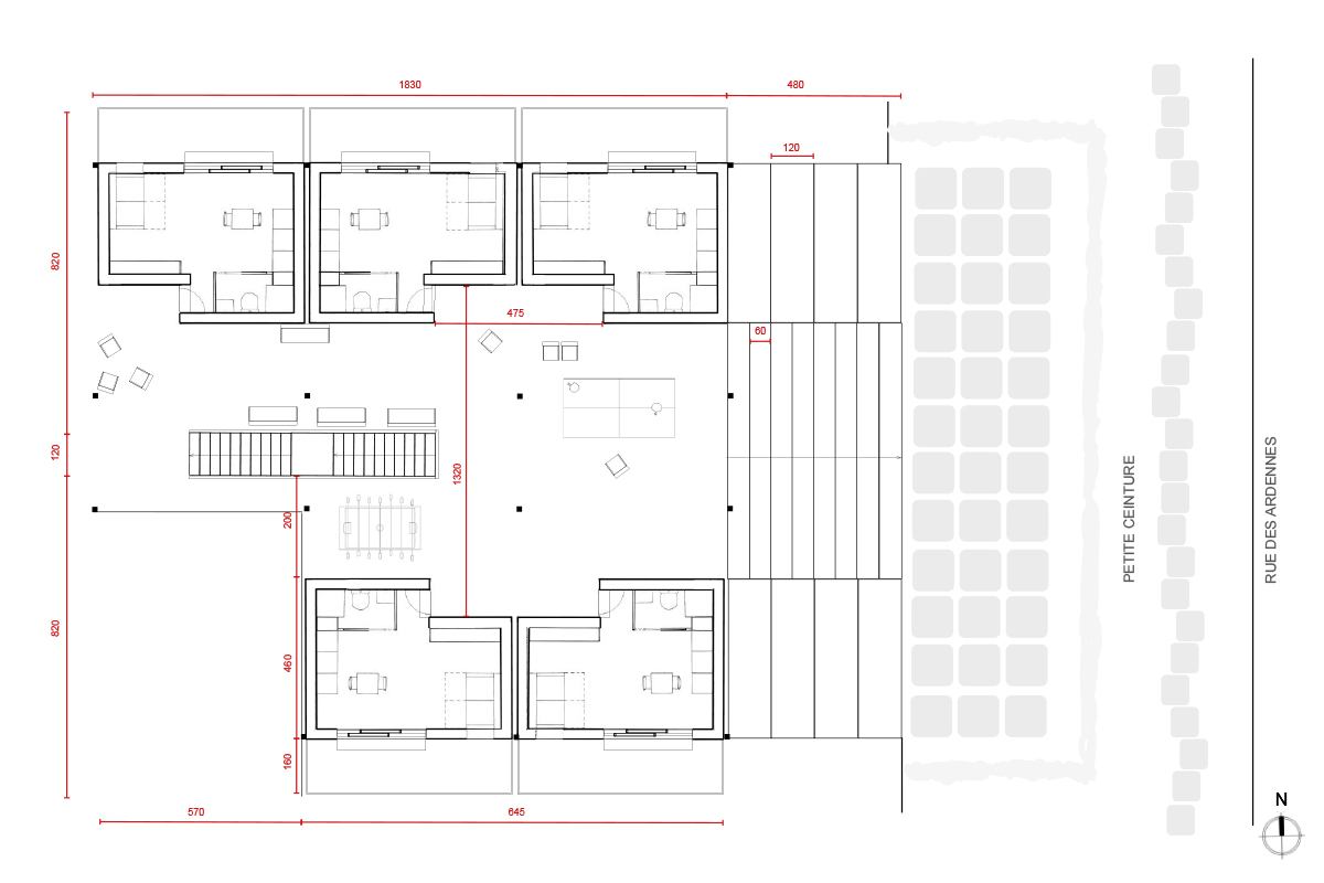
En réponse à l’urgence sociale, il existe en France des dispositifs d’accompagnement pour les personnes en situation de détresse immédiate et dont la vie serait en danger à court ou moyen terme. C’est en s’appuyant sur ce principe qu’est développé ce projet de refuge. Situé dans le 19e arrondissement de Paris, au bord du canal de l’Ourcq, le projet se décompose en une série de cellules qui, associées, créent un "village".
Ce village a pour rôle d’abriter, certes, mais surtout de permettre aux hommes d’habiter. Ce concept renvoie à la notion d’être-là, d’exister. Le projet vise ainsi à concevoir des espaces appropriables et, à travers des unités d’habitation peu onéreuses, à proposer une architecture qui puisse agir comme le point d’un nouveau départ.
La parcelle occupée est un jardin partagé (Charmante Petite Campagne Urbaine) inscrit au plan local d’urbanisme : elle possède donc déjà une identité forte que l’on se doit de préserver en minimisant l’emprise du bâti au profit du jardin collectif préexistant.
Le projet est ainsi constitué de 2 plots :
- un premier plot collectif composé de 15 logements (8 T2 de 30m² et 7 T1 de 18m²) allant jusqu’au R+2.
- un second plot plus intime de 5 logements (1 T1 et 4 T2) allant jusqu’au R+2.
Le système constructif génère des lieux de rencontre et de halte : de grandes dalles soutenues par des poteaux viennent recréer un nouveau sol. Chaque plot est recouvert d’une tôle métallisée venant offrir une couverture protectrice aux résidents. Les cellule sont préfabriquées en atelier et assemblées sur le site à l’aide d’une grue.
Les plots bénéficient d’un accès direct à la Petite Ceinture au niveau du R+2. Les escaliers faisant le lien avec cette infrastructure existante constituent en eux-mêmes un lieu : de larges marches où l’on s’assoit, discute, se repose, flâne. L’architecture de l’ancienne ligne ferroviaire est entièrement réinvestie : le tracé des voies est reconverti en jardin privé et promenade publique. Les fonctions communes du projet (accueil, boîtes aux lettres, espace polyvalent,…) sont abritées sous les voûtes. La salle polyvalente, prolongée en extérieur par une place-parvis accolée à la rue du Thionville, constitue un espace semi-public. Elle permet ainsi l’organisation d’événements auxquels peuvent se joindre le voisinage de quartier.






