
Square Place
Quai de la Garonne, Paris (75), France
Camille Nguyen
Licence 1 / Semestre 2
Enseignant(e/s) d’atelier :
Claudia Mion
Assistant(e) d’atelier :
Victorien Pangaud
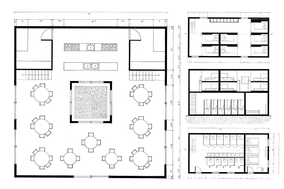
Le projet se situe au niveau du Quai de la Garonne, à proximité du parc de La Villette, dans le 19e arrondissement de Paris. En proposant un habitat rapidement constructible, il a pour but de répondre à la demande de logements d’urgence dont souffre la région.
Cette intervention n’a pas seulement pour objectif de concevoir des logements confortables destinés aux sans-abri mais cherche également à créer un environnement propice à leur réinsertion dans la société par le biais d’espaces et d’activités favorisant les interactions.
Comptant au total 50 lits, ce refuge dispose de 2 dortoirs (hommes et femmes) pour les séjours courts d’une nuit. L’accès aux sanitaires, à la cantine et aux services d’aide y sont pourvus. Des logements de type T1 et T2, équipés de leur propre kitchenette et sanitaires, permettent un hébergement pour des séjours de plus longue durée.
Un équilibre a dû être trouvé dans la conception du projet entre les espaces d’accès public et les parties privées des résidents. Ainsi, tous les service d’usage journalier, tels que les services associatifs et de formation, sont desservis par un cheminement dédié permettant de préserver l’intimité et la tranquillité des occupants. Cette configuration cherche ainsi à permettre l’accueil effectif de profils très variés : usagers quotidiens ou occasionnels, pour un passage rapide, une aide précise et temporaire, ou bien pour une prise en charge de plus longue durée.






