
Vers un nouvel idéal
Quai de la Charente, Paris (75), France
Chiara Couriant
Licence 1 / Semestre 2
Enseignant(e/s) d’atelier :
Isabelle Berthet-Bondet
Assistant(e) d’atelier :
Mathilde Wachoviak
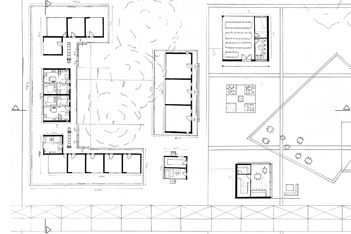
Le projet, situé à proximité du Parc de La Villette, dans le 19e arrondissement de Paris, vise à fournir aux sans-abri des habitats d’urgence. Au total, 30 couchages, comportant 10 T1 de 18m2, et 5 T3 de 34m2, sont installés sur le site. Plusieurs équipements et services communs viennent compléter ce programme : accueil, infirmerie, buanderie, cafétéria et salle polyvalente.
La volonté principale est de concevoir des espaces vecteurs de sécurité et de bien-être en tirant profit de la végétation abondante présente sur le site et ses alentours. Il en résulte ainsi une architecture à échelle humaine, effleurant de plain-pied le sol naturel. La limite entre intérieur et extérieur est atténuée par l’usage de terrasses venant prolonger en dehors l’espace clos des logements.
2 matériaux distincts se concilient dans ce projet : Le béton, laissé à nu, est utilisé pour la structure. Il est préfabriqué au préalable puis assemblé sur le site afin de limiter les coûts et les nuisances du chantier. Ce matériau massif et dépouillé se veut être le récepteur des ombres et des lumières présentes sur le site. Du bois de chêne français est utilisé pour l’intérieur des logements.
Les modules d’habitation sont optimisés pour libérer l’espace au maximum. La surface est dynamisée par le biais d’estrades et de claustras rotatifs dissociant les espaces de jour de ceux de nuit. Le système de claustras, également repris en façade, génère un rythme et des jeux de lumières, tout en permettant de voir sans être vu. Ainsi les résidents peuvent retrouver dans cette architecture leur intimité, tout en s’ouvrant sur l’extérieur et aux autres, dans un objectif de réinsertion sociale.






